Lavender Houses
Iznik, Bursa
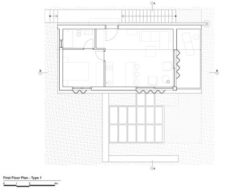
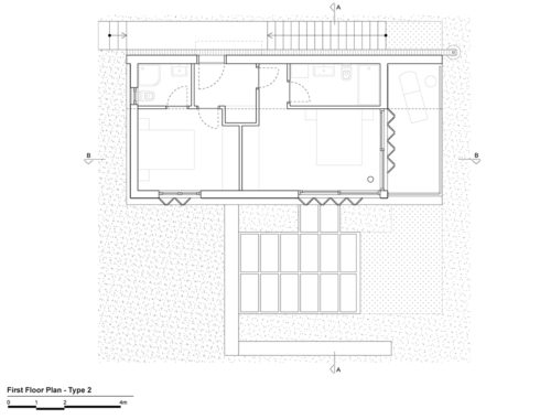
The project sits on a site of approximately 8.000 m2, surrounded by forests, overlooking the Iznik Lake. It consists of seven houses, as well as a shared space. Houses are positioned in such a way to make use of the topography, and not to block the views of others while looking towards the lake, over their gardens. Car traffic is kept at the boundaries of the site, with the help of a ring road and parking spaces distributed along this road. From the parking spaces, it is possible to reach the houses, by means of pedestrian roads, parallel to the slope. These roads merge into the main pedestrian axis at the center, going down to the shared space. Together, these roads provide a comfortable pedestrian circulation within the site. Houses are composed of reinforced concrete and natural stone, solid bases, and wood and metal, light units sitting above. Bases with front facades remaining above ground, with the help of the slope, are built in the first place, along with infrastructure works. Following this, prefabricated CLT panels, with openings for doors and windows, and reservations for water and electricity fittings, already set at the factory, are mounted on top, by means of a crane. This way, not only the construction difficulties are minimized, but also, a light and breathing structure is obtained. Finally, wooden facade cladding and metal roof cladding are applied. In this project, we propose two house types. Even though their exterior appearances do not change, their plan layouts vary, according to different usages. It is possible to add a greenhouse, if needed, to both of these types, where the stairs are kept outside. In this settlement, where rain water is collected and used, electricity is provided by sun and water is obtained with the help of an artesian well, compromising with nature is a fundamental design aspect.




















