Emko Electronics Factory
Nilufer, Bursa
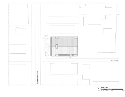
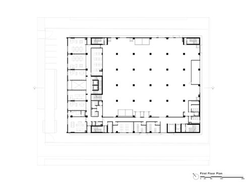
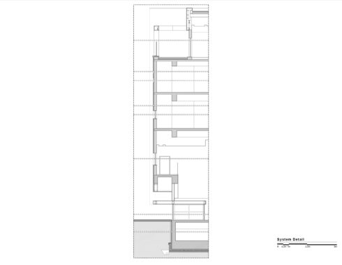
Emko Electronics Factory is located in Bursa Organized Industrial District. Contrary to the more traditional horizontal layout of industrial facilities, it is designed in a vertical way. This was possible, because the production zones could be placed on different floors in relation with the production process; while the main storage hall (positioned on the ground floor because of logistical reasons), could be connected to these with the help of vertical storage systems. Storage and production zones placed on top of each other, are bordered on each floor with office areas facing the avenue. The top floor includes two terraces, used both for recreational purposes and for lightening the perception of height. The building is covered in a skin with an emphasized massiveness, pierced with cuts according to the usages, surrounding the production zones from three sides. The facade facing the avenue, along which office areas are located, is conceived as a relatively more transparent screen, with a predominant feeling of horizontality, where the window rhythm varies according to floor levels.



























