Baruthane
Bakırköy, Istanbul
Ataköy Baruthanesi, known as Baruthane-i Amire, was put into operation in 1700 as the fifth and also the largest and most modern gunpowder factory in Ottoman Istanbul. The facility was renovated during the Selim the 3rd period and expanded with additions such as the Hünkar Mansion. Baruthane, which was transferred to the Military Factories Administration during the Republic period, was later given to the Machinery and Chemical Industry Corporation in 1955. Two years after the transfer, the Ataköy blocks began to rise around the campus and Baruthane was given to the operation of Ataköy Touristic Facilities in 1972, in accordance with the changing needs of the region.
From the original campus, there are four rectangular buildings, a fountain and the Hünkar Mansion, which was built by Selim the 3rd as a viewing and resting pavilion, that remained to the present day. The 324-year-old industrial facility, currently located in the northeastern corner of the Millet Bahçesi (urban park) and containing four buildings, has been restored, re-functioned and opened to the use of the city.
Within the scope of the restoration project, a pavilion structure was proposed in the geometric center of the courtyard surrounded by four buildings. The pavilion in question is designed as a focal point that will attract users entering the courtyard from both the parking lot and the Millet Bahçesi, and then distribute them to the repurposed historical buildings with a kind of centrifugal force. The aforementioned centrifugal force is also embodied through a ramp that circles the building and reaches the roof. Hünkar Mansion and the Marmara Sea can be viewed from the roof in question, which strengthens the visitors’ perception of the context they are in. The possibility of using different open, semi-open and closed spaces in the structure intended as a cafe also made it possible for the pavilion to be used in variable climatic conditions.
Building number 1, located in the southeast corner of the campus, was used as a library. The ground floor of the building was designated as a common working space, and a mezzanine floor consisting of two study spaces connected by a bridge was added. Building number 2 in the southwest corner was desihgnated as an exhibition area. Unlike other buildings, this building has a unique wooden floor. The floor in question has been preserved, and a walking route has been created underneath it, circling around the supporting piers. Building number 3 in the northwest corner was used as a blackbox. Thanks to the telescopic tribunes, it will be possible to use it as an amphitheatre, whenever desired. Finally, the building in the northeast corner was used as a multi-purpose hall. The door operating from Rauf Orbay Street was preserved even though it wasn’t original, and the upper and lower levels are connected to each other via a newly added staircase. In building number 4, unlike the other three buildings, the brick vault covering the volume has not survived to the present day and has been replaced by an iron roof structure. Instead of building a new vault into the building, it was suggested to renew this structure.
In the Baruthane campus, the courtyard is as important as the buildings. It is divided into subsections by the central pavilion, and surrounded by a circulation network consisting of walking paths connecting the entrances of the buildings with the garden gates. The section facing the entrance of the pavilion was kept as a square and served as an opening where large groups of visitors could gather. The section in the north of the campus is designated as an open event area. Sculptures scattered throughout the courtyard further enrich the outdoor experience.
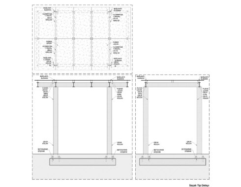
In the restoration of the Baruthane campus, special attention was paid to the separation of old and new. New steel structures was used both in the pavilion in the center, in the entrance eaves added to the buildings, in the completion of the courtyard gate on the side of the Millet Bahçesi, and in the mezzanine floors in the interior spaces. The structures in question were covered with wooden slats mounted at intervals, to create semi-permeable surfaces when desired. These surfaces differ from the impermeable stone walls of Baruthane, and do not divide the space, while drawing a vague border.


































