BAF Textile Factory
Fatsa, Ordu
BAF Textile Factory is located in the Fatsa Organized Industrial District in Ordu. It is designed as the new production facility of BAF Textile, an Istanbul based textile company focused on denim products.
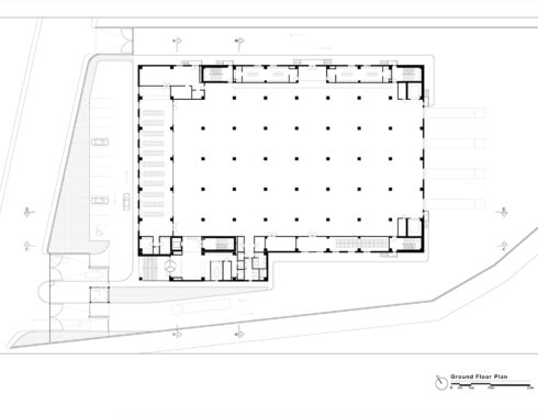
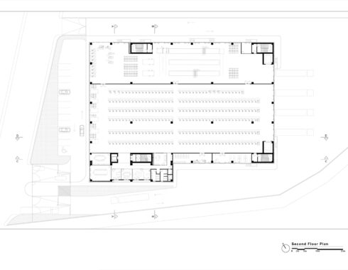
The factory consists of two parts: The office section and the production zone. The former one is positioned on the southeast and oriented towards the area’s main entrance. It is a four storeys high volume, dedicated mostly for the administrative functions. Its ground floor is reserved for the entrance hall and the information desk, and contains a meeting room. The entrance hall is reached through a porch, located underneath a cantilevered volume. The first floor of the office section contains a multi-purpose room with a foyer looking down towards the entrance, through a void. The second floor is reserved for offices related directly with the production, since it coincides with the operation level of the factory. Finally, the third floor is where all the administrative offices are located. The production zone consists of two floors, dedicated mostly for storage and finishing on the ground floor, and cutting on the first floor. The refectory, which is used both by office and production employees, is positioned along the front facade of the production zone, at the intersection of the two parts.
The factory sits on a base made out of cellular concrete wall panels used horizontally. The upper part of the front facade is clad with polycarbonate panels, strengthening the relationship between outside and inside: The bluish semi-opaqueness of the panels allows both to exhibit the production activity in a controlled way from the outside, and increase the daylight inside, while also giving reference to the blueness of the denim production of the factory.












