Ali Pasha Palace Restoration
Fatih, Istanbul
Ali Pasha Palace was built by Sultan Abdulaziz in 1865 by the brothers Agop and Sarkis Balyan (architects of Ciragan Palace, belonging to the famous Balyan family, royal architects of the Ottoman court).
It was bought after Grand Vizir Ali Pasha’s death in 1871 and used as a sheikh al-Islam residence for a short time. Then, Abdulmecid’s older daughter Fatma Sultan was allocated to the palace. Following this, it was reserved for Abdulaziz’s daughters Saliha and Nazime Sultans. The palace, which was used as Mercan High School and Erkan-ı Harbiye (Department of Chief of Staff) for a while, was destroyed in the Mercan fire in 1911, leaving only its masonry walls. The building was demolished by the municipality between 1950-1955. In 1958, sheds were built on the basement floor of the palace for the shopkeepers whose shops were burned in the Grand Bazaar fire. In 1985, the remaining basement and walls of the mansion were removed and a multi-storey car park was built by the Istanbul Metropolitan Municipality.
Ali Pasha Palace restoration project aims to bring back the old building, according to historical documents. The façade features and gauge of the building were preserved, and the plan setup was complied with. Efforts were made to emphasize the main elements that make up the historical character of the building, and the “new” additions were aimed to form a neutral background for these components.
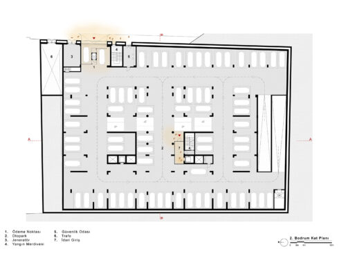
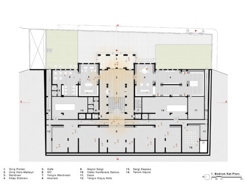
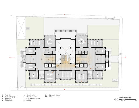
Another priority of the project was to ensure the connection of the car park, which will be located on the 2nd and 3rd basement floors, with the upper floors. The car park is an important feature of the project, which aims to respond to the neighborhood’s parking needs. The 1st basement floor contains the main entrance from the garden. The spaces at both sides of the entrance are planned as a bookshop and a café. The space behind the main stairs is designed as an art gallery. The ground floor contains workshops, while the 1st floor is planned as a small-scale museum. Both the 2nd floor and the roof are reserved for a library and a restaurant.
Ali Pasha Palace restoration project aims to enrich the daily lives of the inhabitants of its neighborhood and its guests, by becoming a space for gathering, while also restoring an important component of Istanbul’s urban memory.






















