Sogutlu Houses
Ayvacik, Canakkale
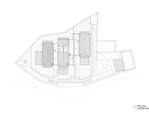
Located in Sogutlu Village of Ayvacik, the Sogutlu Houses consist of three adjacent residences designed for three families who are friends. The design aims to combine the simple and sincere atmosphere of village life with the needs of modern living.
By preserving the natural slope of the land, the structures were placed using a terracing method, which not only separates them from the street but also provides each residence with its own private garden. The buildings are positioned in a way that does not block each other’s views, ensuring privacy.
Natural stone, balcony details, and simple volumes strongly reference the local architecture. The simplicity in materials and details creates an architectural language that aligns with the context.
CLIENTBurcin, Didem ve Seda
YEAR2025
STATUSUnder Construction
TYPEResidential
BUILT AREA500 m²



























