Acibadem Eskisehir Solar Power Plant Transformer Center
Odunpazari, Eskisehir
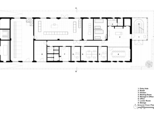
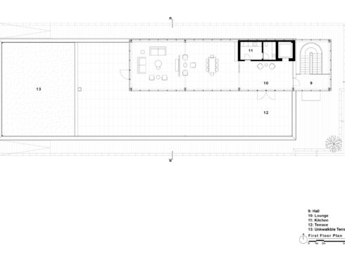
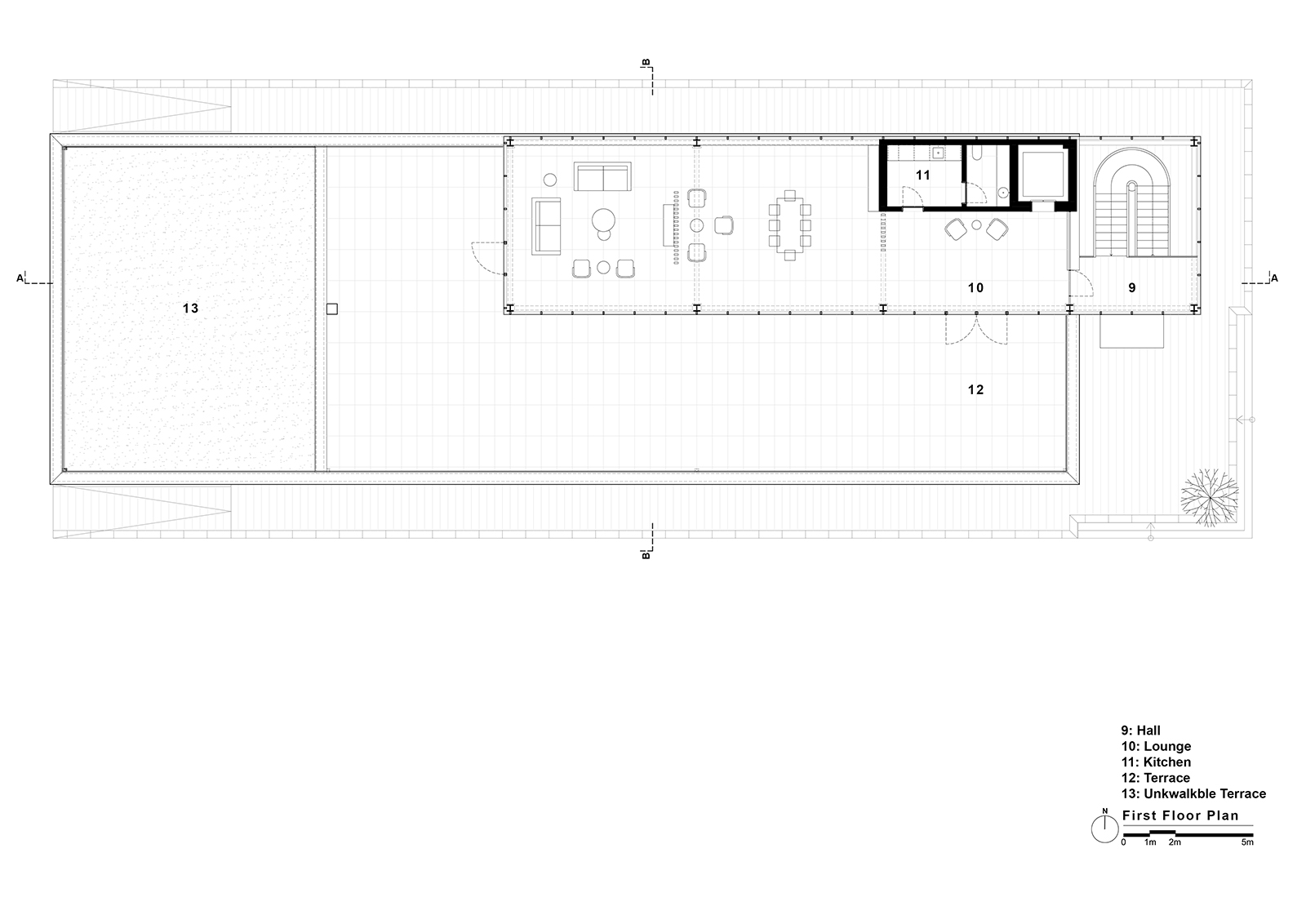
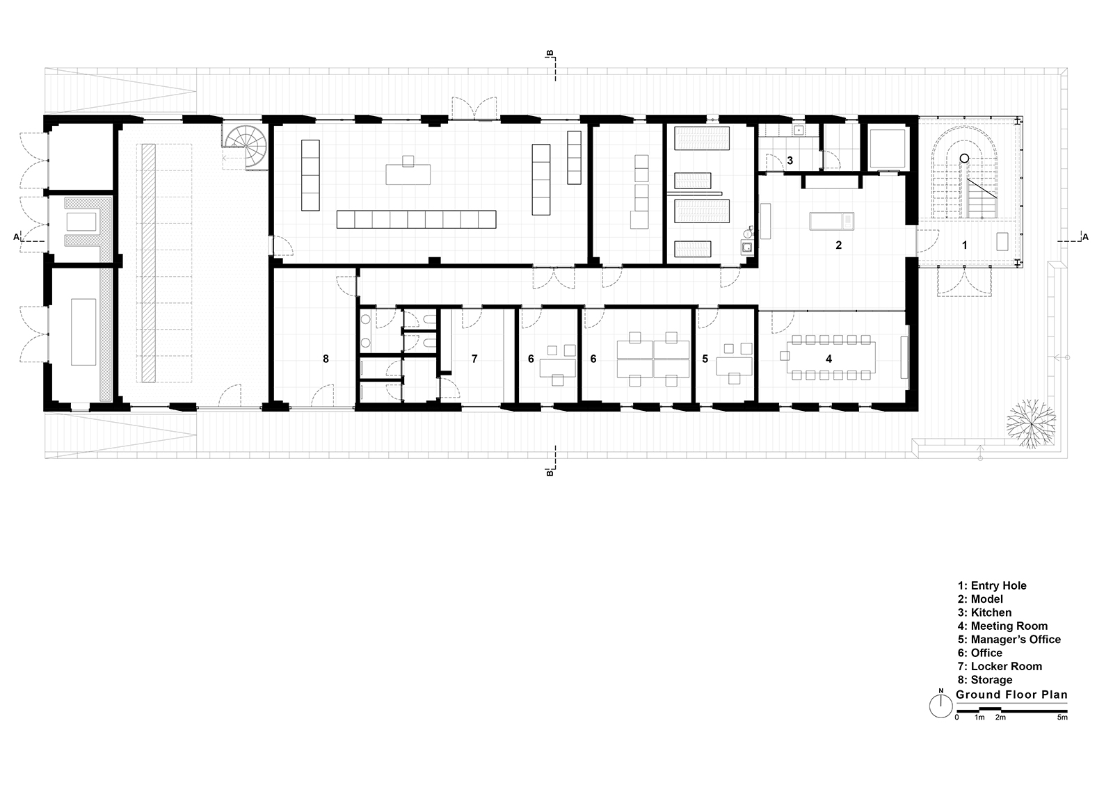
Acibadem Eskisehir Solar Power Plant Transformer Center, designed to serve as a control building for the solar energy field built to meet a large part of the energy needs of Acibadem Hospitals in Odunpazari, Eskisehir, includes a gathering area and viewing deck in addition to technical areas, and explores the relationship between masses that create contrast with each other. The ground-level mass achieves an opaque facade appearance through the use of straw plaster, while the upper mass forms an abstract volume using a silicone-composite glass facade to showcase the panoramic view. The straw plaster used on the facade also influences the interior space through various wall surfaces and furniture.
CLIENTAcibadem Project Management
YEAR2025
STATUSUnder Construction
TYPEIndustrial
BUILT AREA884.35 m²


















