Duacinari Cultural and Commercial Center
Yildirim, Bursa
Duaçınarı Cultural and Commercial Center is located in the Yıldırım District of Bursa, on Ankara Yolu Avenue, a main artery that cuts the city on an east-west axis. With its functions and green areas, the center is aimed to be an important urban focus on the scale of its neighborhood, Yıldırım District, and Bursa as a whole.
By leaving a vegetated area along the edge of the Ankara Yolu Avenue, it is aimed to create a visual and auditory filter between the street and the project area. This green band is continued into the project area through a courtyard. The courtyard is surrounded by cloisters, reminiscent of the building typology we observe in the historical inns in the Hanlar District. However, here, rather than being enclosed, the courtyard opens out both over the green band and the circulation axis left between the three blocks.
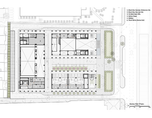
In the shaping of the three blocks surrounding the courtyard, the height and alignment of the buildings on the neighboring plots were taken into consideration. The first block, facing Ankara Yolu Street, contains the black box and the main concert hall. Two wedding halls are located on the ground floor of the second block, extending along the south side of the plot. The upper part of the wedding halls will be used as a library. In order to keep the courtyard alive and generate income at the same time, the ground floor is reserved for commercial functions.
In the monumental architectural examples in Bursa, where traces of early Ottoman architecture are widely seen due to being the first capital of the Ottoman Empire, natural stone and brick are often used alternately, and lead roofing completes this duo. Iznik tiles are among the most prominent elements of the architectural aesthetics here, both indoors and outdoors. This material palette also shows itself on the surfaces of the Duaçınarı Cultural and Commercial Center, strengthening the building’s relationship with its context.



























