Tayyare Cultural Center Library
Osmangazi, Bursa
The Tayyare Cultural Center, built in 1932 by the Turkish Aeronautical Association and designed by Arif Hikmet Koyunoglu, is a landmark in Bursa’s cultural life. Restored between 1992 and 1995, it continues to host events with its 700-seat auditorium, exhibition, and cocktail halls.
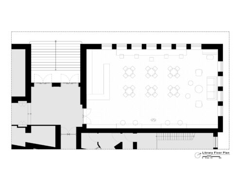
Located at ground level, the Cocktail Hall, which faces the Historical Municipality Building and the Sefik Bursali Art Gallery, is planned to be transformed into a cafe and library. This adaptive reuse will support use of the building outside performance hours, with a side entrance allowing independent access.
The new interior design will continue the building’s original material language, using brass tones, wood, and marble. The non-original parquet floor will be replaced with palladiana flooring made from broken pieces of marble matching the existing ones. On the walls, the plaster will be removed to reveal and paint the original masonry, and the existing drywall ceiling will be removed to expose the original ceiling surface.
Mechanical elements on the ceiling (like ducts and lighting) will be painted to match the walls for visual coherence. The cafe counter will be marble, bookshelves and work tables in natural walnut wood, and cafe tables will feature marble tops with brass legs.






