Mod Offshore Factory
Ereğli Organized Industrial Zone, Zonguldak
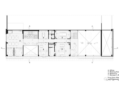
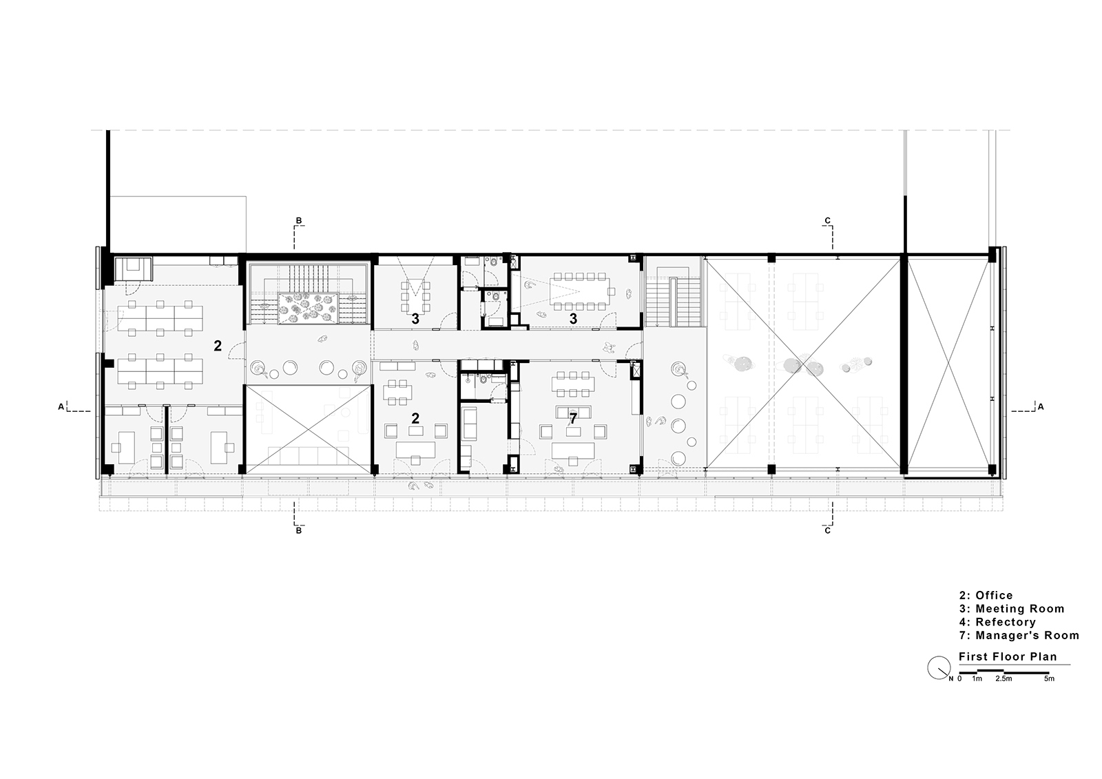
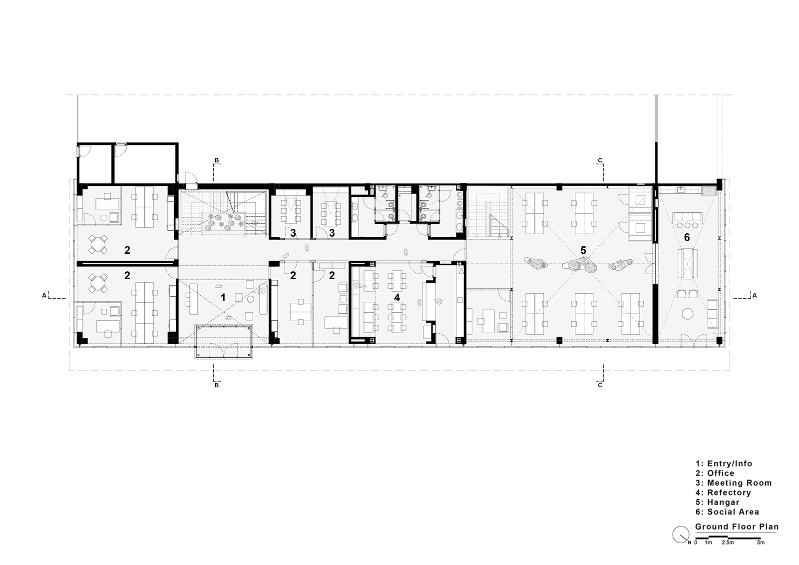
Located in the Zonguldak Ereğli Organized Industrial Zone, the project transforms an old factory into a modern industrial hub by repurposing the original building footprint for office spaces and its new needs while expanding backwards to accommodate new production areas. A key feature of this renovation is “The Hangar,” a versatile space designed to house additional office zones within the new space. To bridge the gap between different parts of the intervention area, a semi permeable aluminum sheet facade wraps around the building like a protective shell, providing a balcony and essential sunlight insulation for the long facade while unifying the entire mass into one cohesive architectural statement. Inside, while keeping the structure of the building, new add-ons were added as needed. The workspaces are defined by a simple and refined palette of off-white plaster and warm wood to provide a comfortable working environment, complemented by colored glass and ceramic accents, textile surfaces and painted areas, that subtly integrate the company’s corporate colors into the design.



















